Criar a planta de uma casa geminada pode ser um desafio interessante. Esse tipo de construção, onde duas ou mais casas compartilham uma parede lateral, é uma ótima opção para maximizar o uso do terreno e otimizar custos. Porém, para garantir conforto e funcionalidade, é preciso planejar cada detalhe com cuidado. Quer saber como criar uma planta ideal para casas geminadas? Confira nossas dicas!
O que é uma Casa Geminada?
Confira:
- 1 O que é uma Casa Geminada?
- 2 1. Aproveitamento do Terreno
- 3 2. Privacidade dos Moradores
- 4 3. Distribuição Interna dos Ambientes
- 5 4. Integração de Ambientes
- 6 5. Iluminação Natural e Ventilação
- 7 6. Garagem Funcional
- 8 7. Sustentabilidade e Eficiência Energética
- 9 8. Paisagismo e Áreas Externas
- 10 Ideias de Plantas de Casas Geminadas
Antes de começarmos, vale a pena esclarecer o conceito. Casas geminadas são aquelas que dividem uma ou mais paredes com a casa vizinha. Cada unidade tem sua própria entrada e, muitas vezes, o terreno é dividido de maneira uniforme entre as casas.
1. Aproveitamento do Terreno
O primeiro passo para desenhar a planta de uma casa geminada é aproveitar ao máximo o terreno disponível. Como as casas dividem uma parede, é possível otimizar o espaço lateral que normalmente seria usado como corredor. Para isso:
- Avalie a largura do terreno e defina o número de casas que podem ser construídas.
- Pense na profundidade do lote, distribuindo a área interna de maneira que a parte frontal e traseira sejam funcionais.
Um bom planejamento deve garantir que ambas as casas tenham espaços bem distribuídos e áreas privativas.
2. Privacidade dos Moradores
Mesmo compartilhando paredes, a privacidade dos moradores é essencial. Algumas soluções para garantir isso incluem:
- Isolamento acústico: invista em paredes com materiais que minimizem o som entre as unidades.
- Posicionamento das janelas: evite janelas voltadas para o vizinho. Isso não apenas ajuda na privacidade, mas também melhora a ventilação cruzada.
- Entrada independente: crie entradas que não comprometam a privacidade dos moradores.
3. Distribuição Interna dos Ambientes
A planta de uma casa geminada precisa ser prática e confortável. Uma boa dica é priorizar a área social (como sala de estar e cozinha) na parte frontal da casa, enquanto os quartos e áreas de descanso podem ficar na parte de trás ou no segundo andar. Algumas sugestões de layout são:
- Planta térrea: se o terreno for grande, a planta térrea pode funcionar bem, com sala e cozinha integradas na frente e os quartos mais ao fundo.
- Planta com dois andares: para terrenos menores, distribuir os ambientes em dois andares pode ser uma ótima solução, deixando as áreas sociais no térreo e os quartos no andar superior.
4. Integração de Ambientes
Para otimizar o espaço, especialmente em terrenos pequenos, a integração de ambientes é uma estratégia importante. Salas de estar e jantar, juntamente com a cozinha, podem ser unidas em um espaço aberto, dando a sensação de amplitude. Além disso:
- Cozinha americana: usar uma cozinha com balcão integrado à sala é uma maneira inteligente de aproveitar espaço e ainda criar um ambiente moderno.
- Área gourmet: se possível, aproveite o espaço de quintal para criar uma área de lazer com churrasqueira, perfeita para reuniões familiares.
5. Iluminação Natural e Ventilação
Como uma das laterais estará ocupada pela casa vizinha, é importante planejar cuidadosamente a entrada de luz e ventilação natural. Algumas dicas são:
- Aberturas na fachada: janelas amplas na frente da casa ajudam a garantir luz natural e ventilação.
- Claraboias e janelas superiores: em áreas mais internas, usar claraboias ou janelas altas pode ser uma solução para trazer luz e manter o ambiente bem ventilado.
6. Garagem Funcional
Um ponto que deve ser muito bem planejado é a garagem. Em casas geminadas, onde o terreno costuma ser estreito, pode ser um desafio acomodar mais de um carro. Algumas soluções incluem:
- Garagem frontal: opte por uma garagem na parte da frente, maximizando o espaço interno.
- Garagem lateral ou subsolo: em casos de terrenos mais inclinados, uma garagem no subsolo pode ser uma solução interessante.
7. Sustentabilidade e Eficiência Energética
Pensar em sustentabilidade é uma tendência cada vez mais forte na arquitetura. No caso das casas geminadas, algumas práticas simples podem ser implementadas, como:
- Telhado verde: além de ajudar no isolamento térmico, um telhado verde contribui para a sustentabilidade.
- Aproveitamento da água da chuva: criar um sistema de captação de água pluvial para irrigação ou limpeza.
- Placas solares: considerar o uso de energia solar para reduzir o consumo de eletricidade.
8. Paisagismo e Áreas Externas
Mesmo que o terreno seja limitado, é possível planejar pequenas áreas verdes que agregam valor ao projeto. Um pequeno jardim na entrada ou no quintal traseiro pode ser uma ótima adição para criar um ambiente mais agradável e relaxante.
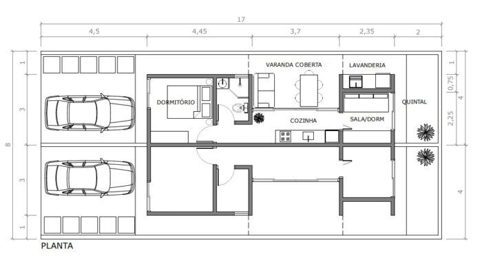
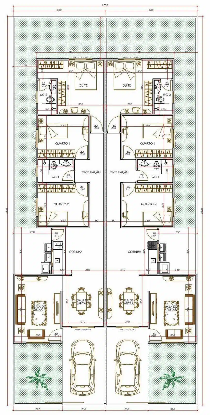
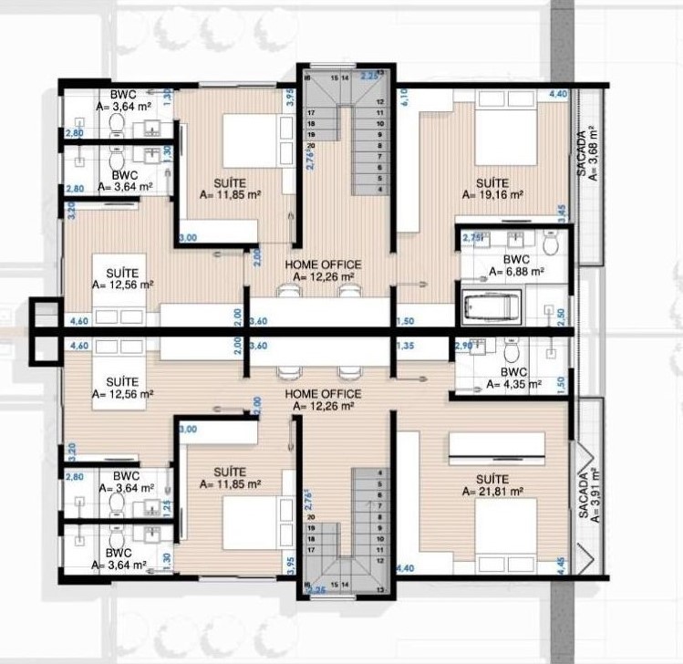
Ideias de Plantas de Casas Geminadas





























Criar uma planta para casas geminadas exige atenção aos detalhes para garantir funcionalidade, conforto e privacidade aos moradores. O segredo está em otimizar o espaço disponível, garantindo que cada metro quadrado seja bem aproveitado, sem comprometer a estética e a praticidade do projeto.
Agora que você conhece as principais dicas, o que acha de começar a planejar o seu projeto? Ou, se já construiu uma casa geminada, compartilhe suas dicas nos comentários! Não esqueça de compartilhar esse post nas suas redes sociais para inspirar outras pessoas.










